Villa
År: 2023
Arkitekt: Søren Pihlmann
Kunde: Marianne Krogh
Størrelse: 166m2
Foto: hampus berndtson
Status: Leveret
••••
En levende transformation
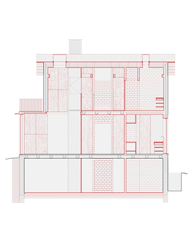
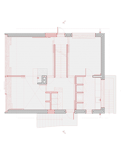
House14a er en totalrenovering, der bygger videre på husets eksisterende fortælling uden at fastfryse det i en endelig form. Oprindeligt opført i 1951 som en klassisk dansk villa, har huset gennemgået en transformation, hvor nye og gamle elementer smelter sammen i en dynamisk helhed. I stedet for at skabe en fuldstændig nyfortolkning er hver tilføjelse og justering en videreførelse af det, der var – en lagdelt proces, hvor materialer, teksturer og funktioner afspejler husets udvikling.
Gjerulff & Lassen har stået for hovedentreprisen og sikret, at renoveringen både respekterer det oprindelige håndværk og integrerer moderne løsninger. De rå og raffinerede elementer mødes i en balanceret helhed, hvor fleksibilitet og funktionalitet skaber rum for fremtidige tilpasninger. House14a er ikke et færdigt værk, men et hjem i fortsat forandring – en åben fortælling om tid, materialer og mennesker.
••••
Vinder af Årets Arne

Årets Arne 2024 gik til pihlmann for House 14a. Arkitektforeningens Københavns nytårskur i The Plant på Amager. Samme aften modtog Reduction Roadmap initiativprisen Lille Arne 2024 for at samle byggebranchen under fælles fane med en appel om, at dansk byggelovgivning skal afspejle klimavidenskaben, så vi kan overholde Paris-aftalen.
De fem værker, som i år var nomineret til Årets Arne, havde det til fælles, at de alle er frontløbere for en ny bevægelse. Men det var pihlmann, der løb med prisen for transformationen af en rød murstensvilla i Hellerup. Juryen roste projek-tet for et godt samarbejde og forbilledlig brug af eksisterende materialer:
”House 14a er et gesamtkunstwerk, som er skabt af et særligt samarbejde mellem bygherre, håndværkere og arkitekten. Prisen går derfor til dem alle sammen. Vi håber, at projektet vil inspirere flere til at transformere i stedet for at rive ned og bygge nyt. Samtidig er transformationen et udtryk for en ny æstetik og et nyt syn på vores materialer,” lød det blandt andet i motivationen.
Tårnhøjt niveau forpligter vinderen og hele branchen
Både juryen og gæstekritikerne var imponerede over kvaliteten i de fem projekter og arkitekternes visionære metoder. Men med hæderen følger også en forpligtigelse. Både for de nominerede men også for Arkitektforeningen og den enkelte arkitekt, mente juryen:
”For med en ny måde at være arkitekt på – med bevidsthed om brugen af klodens ressourcer og samarbejde mellem byggeriets aktører – kommer en ny æstetik, som vi alle skal tage ved lære af. Og den viden skal skaleres og deles.”
I sin takketale beskrev partner i pihlmann, Søren Pihlmann, projektet som værende ’født i en samtale’ med bygherre Marianne Krogh, som han roser for sin kompromisløshed.
”Vi har lavet få tegninger forud for projektet. Til gengæld har vi haft lange dialoger om stedet og truffet de fleste beslutninger on-site. Rollerne som bygherre og arkitekt har været flydende. Hvem bestemmer, og hvem tegner? Det blev til et symbiotisk samarbejde, og den metode er jeg meget stolt af at blive hædret for,” siger Søren Pihlmann.
FACTS:
Arkitektforeningen København uddeler hvert år arkitekturprisen Årets Arne. Årets Arne er indstiftet i 2007 og gives til opførte værker, der har løftet arkitekturen i Arkitektforeningen Københavns geografiske område i det forgangne år.
Derudover uddeles en initiativpris til realiserede og ikke-realiserede projekter og nytænkende ideer, som har skabt debat eller gjort en forskel for faget lokalt.
Prisen er en statuette i akryl præget med arkitekten Arne Jacobsens ansigt.


